Thiết kếLiền kề1 diện tích 82,3m2 Him Lam Thượng Thanh
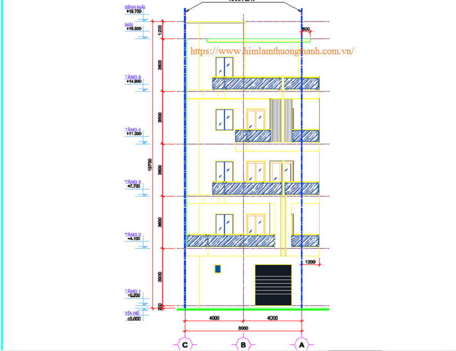
Mẫu LK1 diện tích 82,3m2 Him Lam Thượng Thanh lô góc với diện tích 82,3m2. Diện tích xây dựng 72,70m2 thiết kế 5 tầng.
Nhà 5 tầng và mái bê tông. Khoảng lùi sân sau là 1,2m
Sơ đồ tổng quan và vị trí mẫu liền kề LK1
Thiết kế tầng 1 mẫu LK1 – Him Lam Thượng Thanh
Mẫu thiết kế LK1 tầng 2
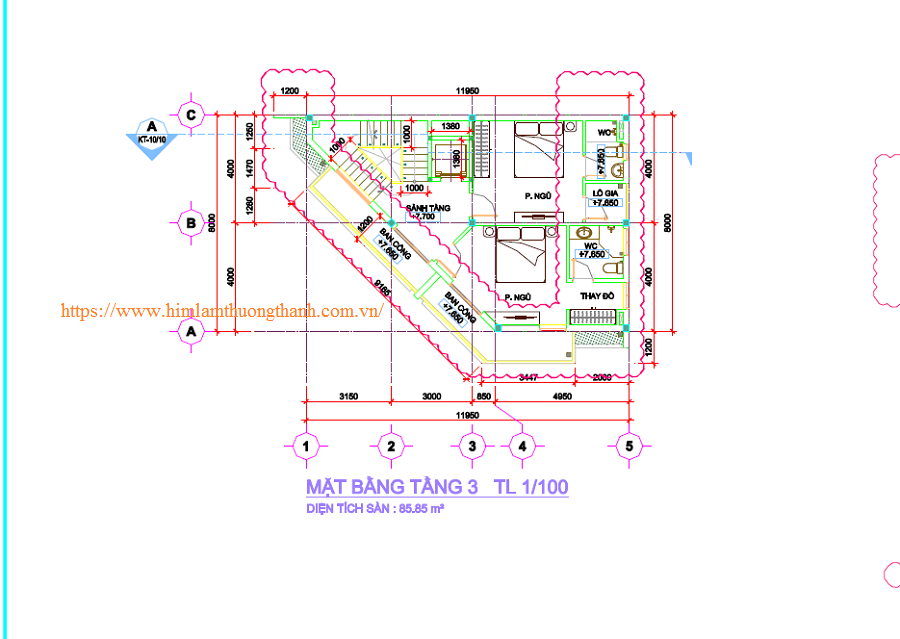
Mẫu thiết kế LK1 tầng 3
Mẫu thiết kế LK1 tầng 4
Mẫu thiết kế LK1 tầng 5
Mẫu thiết kế LK1 tầng mái
Thiết kế mặt ngoài liền kề Him Lam Thượng Thanh mẫu LK1
Ban Kinh Doanh: 0901.312.999
Bảng giá xem tại: https://himlam-thuongthanh.com/









