Chi tiết thiết kế mẫu LK6 Him Lam Thượng Thanh
Mẫu LK6 diện tích khuôn viên 71,6m2. Diện tích xây dựng 62,4m2 thiết kế 5 tầng và mái bê tông.
Mặt cắt tổng quan quan sát từ bên ngoài LK6 Him Lam Thượng Thanh
Sơ đồ tổng quan vị trí LK6
Thiết kế chi tiết tầng 1 và tầng 2 mẫu LK6 Him Lam Thượng Thanh
Thiết kế chi tiết tầng 3 và tầng 4 mẫu LK6 Him Lam Thượng Thanh
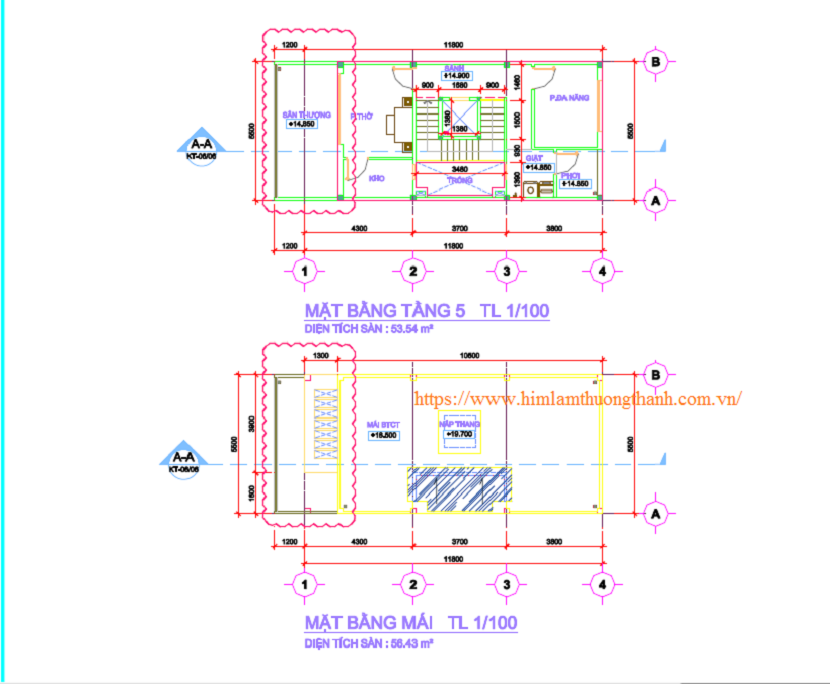
Thiết kế chi tiết tầng 5 và tầng mái mẫu LK6 Him Lam Thượng Thanh
Ban Kinh Doanh: 0901.312.999
Bảng giá xem tại: https://himlam-thuongthanh.com/





